有料老人ホーム サンライズ・ヴィラさがみ野
サンライズ・ヴィラさがみ野
入居後もその人らしい暮らしが実現できるように、
個々の望む生活をサポートいたします
空室状況詳細はお問合せください。

- 住所
- 〒243-0401 神奈川県海老名市東柏ヶ谷三丁目4番8号
- 電話
- 046-235-7630
- FAX
- 046-235-7637
- アクセス
- 相鉄本線「さがみ野」駅 下車 徒歩3分(200m)
- その他
- 土地建物権利形態:賃借(30年間の普通賃貸借...自動更新条項付)
-
-
- 看取対応(医療機関連携)
- 認知症対応可
- 前払金・0円プラン有
- 8時間看護体制
- デイサービス併設
- 駅近
- 2人部屋
- WC:カーテン
施設長メッセージ
ホームの特長
外出を愉しむ
駅に近い利便性を活かし、スタッフとマンツーマンで買い物などを楽しむことができます。外出できる頻度を高めるケアプランを作成します。※1
- ※1 ご入居者の選択により介護事業者との直接契約を行うことで、介護サービスをご利用いただくことができます。
デイサービスを楽しむ
施設内にデイサービスセンターを併設しており、最大15名まで利用可能です。活気のある雰囲気に心も身体も踊ります。
いつでもご家族が立ち寄れる場所
サンライズ・ヴィラ さがみ野は相模鉄道「さがみ野」駅より徒歩3分と、ご家族がいつでもお気軽にお越しになれる場所にあります。
環境に配慮し、オール電化を採用
当施設はオール電化施設を採用し、エネルギー消費の多い給湯設備には、省エネルギーおよびCO2削減効果の高いヒートポンプ給湯機を設置、低炭素社会に向け貢献しております。
コンセプトチラシはこちら
ホームの概要
施設概要
| 所在地 | 神奈川県海老名市東柏ヶ谷三丁目4番8号 |
|---|---|
| 電話番号 | 046-235-7630 |
| FAX番号 | 046-235-7637 |
| 交通 | 相鉄本線「さがみ野」駅 下車 徒歩3分(200m) |
施設類型及び表示事項
| 施設類型 | 住宅型有料老人ホーム |
|---|---|
| 居住権利形態 | 利用権方式 |
| 利用料の支払方法 | 選択方式 |
| 入居要件 | 概ね65歳以上で入居時自立・要支援・要介護 |
| 介護に係る職員体制 | - |
| 常勤換算 | - |
| 夜間最小人数 |
介護職員2人 ※休憩時間内であっても緊急対応いたします |
建物概要
| 建築構造 | 鉄筋コンクリート造3階建て |
|---|---|
| 敷地面積 | 1,210.94m² |
| 延床面積 | 1,876.63m²(内有料老人ホーム部分1,804.76m²) |
| 開設年月日 | 2009年11月1日 |
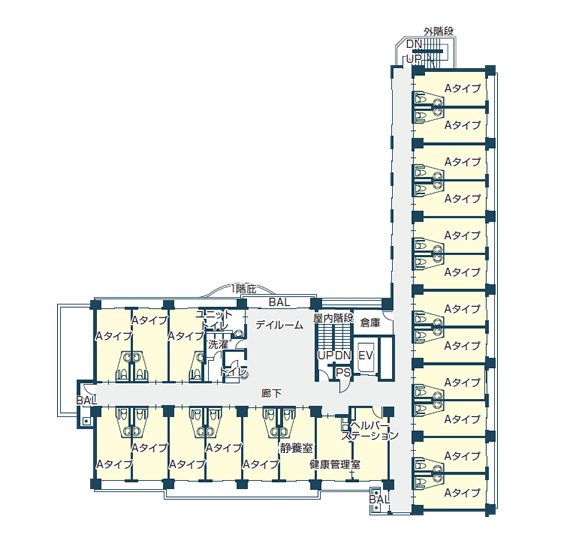
居室概要
| 総室数/定員数 | 47室/52人 |
|---|---|
| 居室面積 | 18.0m²~27.0m² |
| 介護保険 | 在宅サービス利用可 |
| 権利形態 | 土地建物運営主体非所有(30年間の普通賃貸借契約 自動更新条項付) |
設備概要
| 共有施設・共有設備 | 食堂(多目的室、機能訓練室、談話室兼用)、浴室(特殊浴室、個室浴室)、一般浴室、応接室、洗濯室 |
|---|---|
| 居室設備 | バリアフリー設計(手すり設置・段差なし)、温水洗浄機能付トイレ、エアコン、介護用電動ベッド、ケアコール(ハンディコール)、車イス対応トイレ、エレベーター、スプリンクラー及び防災設備、洗面台 |
| 協力医療機関 | 医療法人社団 医誠会 湘陽かしわ台病院 |
| 協力内容 |
・訪問診療の実施、受診入院支援。 ・入居者の受診、治療に協力する。診断の結果、入院治療が必要とされる場合には、本人の同意の下に入院を支援する |
| その他 | - |
ホームでの生活
ご利用料金
2023年5月1日現在
前払金と月額利用料
前払金
前払金は前払い家賃です。
ご入居時に前払金の30%を償却させていただきます。
残りの70%を5年間(60回)で月割均等償却致します。
月額利用料
月額利用料は、「家賃相当」、「管理費相当」、「食費相当」3つの金額を合わせたものを「月額利用料」と表示しております。
●管理費相当
- 共用施設等の維持・管理、光熱水費、一般事務、生活サービス費に係わる人件費、備品、消耗品費
●食費相当
- 食費は、1人30日(90食)の場合72,260円となります。 また、1人31日(93食)の場合73,466円となります。
- 食費は、厨房維持費(36,080円)と食料材料費(36,180円)で構成されています。
- 欠食の場合は、前日の18時までのお申出により朝食249円(8%)、昼食429円(10%)、夕食528円(10%)として計算し、翌月時の請求時に食料材料費のみを減額精算いたします。
- ※管理費相当、食費相当には、消費税が含まれております。
- ※月額利用料に含まれない実費負担等
- おむつ代、被服等のドライクリーニング代、電話代、NHK料金等テレビ受信に伴う費用、レクリエーションの実費負担分、理美容代、医療費、個人利用の介護及び看護用品費、緊急時を除く協力医療機関以外への通院入院介助及び移送費、個人要望による居室への配膳下膳費等
基本価格
| 部屋タイプ | 前払金 | 月額利用料 | 月額利用料内訳 | ||
|---|---|---|---|---|---|
| 家賃 | 管理費 | 食費 | |||
| 1人部屋43室 Aタイプ(18m²) |
3,500,000円 | 228,090円 | 73,000円 | 82,830円 | 72,260円 |
| 2人部屋 5室(1人入居) Bタイプ(27m²) |
5,200,000円 | 289,939円 | 110,000円 | 107,679円 | 72,260円 |
| 2人部屋 5室(2人入居) Bタイプ(27m²) |
5,200,000円 | 420,180円 | 110,000円 | 165,660円 | 144,520円 |
選択価格制度
※選択価格制度は、前払金60万円に対して、月額利用料(家賃)1万円の割合で増減ができる制度です。ご予算に合わせてご利用ください。
Aタイプ 42 室(18.0㎡)
| プラン | 入居一時金 | 月額利用料 | 月額利用料内訳 | ||
|---|---|---|---|---|---|
| 家賃相当 | 管理費相当 | 食費相当 | |||
| 上限 | 4,700,000円 | 208,090円 | 53,000円 | 82,830円 | 72,260円 |
| 4,100,000円 | 218,090円 | 63,000円 | 82,830円 | 72,260円 | |
| スタンダード | 3,500,000円 | 228,090円 | 73,000円 | 82,830円 | 72,260円 |
| 0円プラン | 0円 | 286,390円 | 131,300円 | 82,830円 | 72,260円 |
Bタイプ 5室(27.0㎡)2人入居の場合の例
| プラン | 入居一時金 | 月額利用料 | 月額利用料内訳 | ||
|---|---|---|---|---|---|
| 家賃相当 | 管理費相当 | 食費相当 | |||
| 5,800,000円 | 410,180円 | 100,000円 | 165,660円 | 144,520円 | |
| スタンダード | 5,200,000円 | 420,180円 | 110,000円 | 165,660円 | 144,520円 |
| 0円プラン | 0円 | 506,780円 | 196,600円 | 165,660円 | 144,520円 |
Bタイプ 5室(27.0㎡)1人入居の場合の例
| プラン | 入居一時金 | 月額利用料 | 月額利用料内訳 | ||
|---|---|---|---|---|---|
| 家賃相当 | 管理費相当 | 食費相当 | |||
| 5,800,000円 | 279,939円 | 100,000円 | 107,679円 | 72,260円 | |
| スタンダード | 5,200,000円 | 289,939円 | 110,000円 | 107,679円 | 72,260円 |
| 0円プラン | 0円 | 376,539円 | 196,600円 | 107,679円 | 72,260円 |
-
厨房維持費 36,080円
食材料費 36,180円
食材料費は朝食249円8%、昼食429円10%、夕食528円10%